« LES TERRES DE SOIE » à Saint-Siméon-de-Bressieux
Vous souhaitez acquérir un bien clé en main?
Une toute nouvelle opportunité s’offre à vous sur notre territoire!
Dans une résidence premium, sécurisée, avec ascenseur; plus de 18 appartements vous sont proposés dès à présent dont :
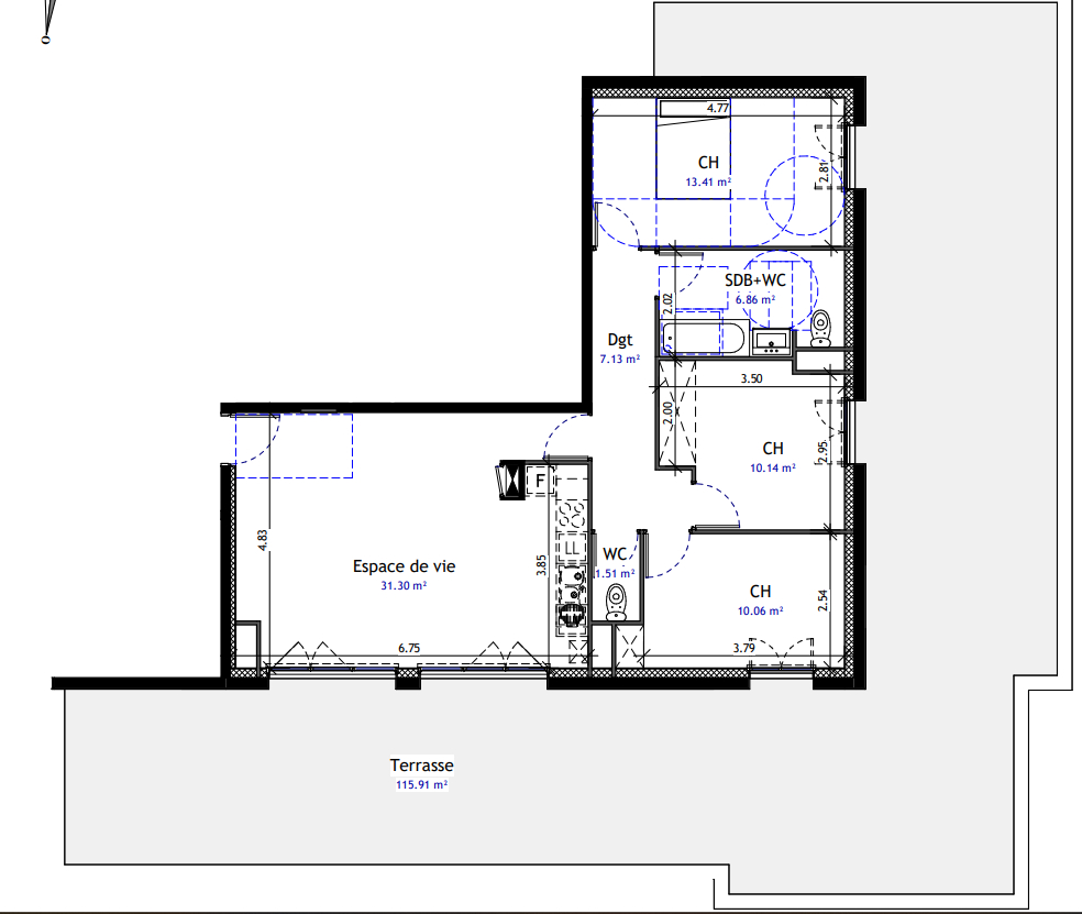
Ce T4 de 80.41m² au deuxième étage.
il comprend :
Une pièce de vie de 31.30m² ainsi que trois chambres de 10 à 13.41m² ;une belle salle de bains avec WC ainsi qu’un autre WC indépendant!!!
Le gros plus, une magnifique terrasse de 115,91m² !!!!
Vous avez aussi la possibilité d’autres appartements:
– du T2 au T4
– du rez-de-jardin au rooftop, pour toutes vos envies!
Chaque appartement est composé d’une pièce de vie ouverte, d’une ou plusieurs chambres, d’une salle de bains, d’un balcon.
Prestations de qualité!!!!
Possibilité d’acquérir un garage en sous-sol, allant de 12.50m² à 25m², il faudra faire vite !
FRAIS D’AQUISITION REDUITS!!!
DOMMAGE OUVRAGE!!!
DECENNALE!!!
L’équipe STARTHOM, native du territoire à VOTRE service pour accompagner votre projet SEREINEMENT
Contactez-nous pour une étude personnalisée de votre projet et pour découvrir toutes les possibilités qui s’offrent à vous ….
Copropriété de 58 lots – dont 58 lots habitation.
Charges annuelles : 100 euros.
Laetitia GUINET (EI) Agent Commercial – Numéro RSAC : 795405539 – GRENOBLE.

